38 Crescent StreetKingston, MA 02364
Due to the health concerns created by Coronavirus we are offering personal 1-1 online video walkthough tours where possible.




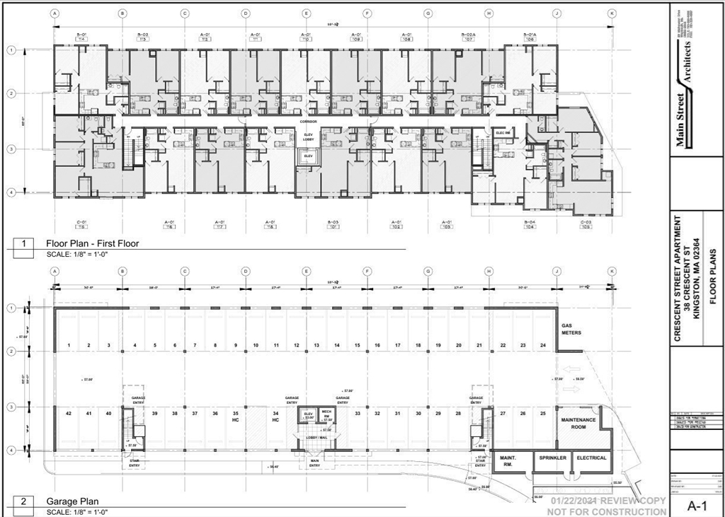
DEVELOPMENT OPPORTUNITY --- Planned 54 unit residential development (30 1-Bedroom, 18 2-bedroom, and 6 3-bedroom units) with preliminary approvals, requiring final state level 40B approval to be obtained by buyer. 65 proposed parking spaces. Single family, currently tenanted home to remain as an added bonus to buyer. Sewer betterment agreement with town of Kingston and Wetlands conservation agreement with state department of environmental protection to transfer to buyer. All final approvals shall be responsibility of buyer
| 4 hours ago | Listing updated with changes from the MLS® | |
| 4 hours ago | Listing first seen on site |
The property listing data and information, or the Images, set forth herein were provided to MLS Property Information Network, Inc. from third party sources, including sellers, lessors, landlords, and public records, and were compiled by MLS Property Information Network, Inc. The property listing data and information, and the Images, are for the personal, non-commercial use of consumers having a good faith interest in purchasing, leasing or renting listed properties of the type displayed to them and may not be used for any purpose other than to identify prospective properties which such consumers may have a good faith interest in purchasing, leasing or renting. MLS Property Information Network, Inc. and its subscribers disclaim any and all representations and warranties as to the accuracy of the property listing data and information, or as to the accuracy of any of the Images, set forth herein.
Last checked 2025-11-07 07:58 AM UTC

Did you know? You can invite friends and family to your search. They can join your search, rate and discuss listings with you.